Sérhæð. Nýbygging Los Balcones · Suður Costa Blanca

259.000€ 37.100.000 ISK

Sérhæð. Nýbygging Los Balcones · Suður Costa Blanca

259.000€ 37.100.000 ISK
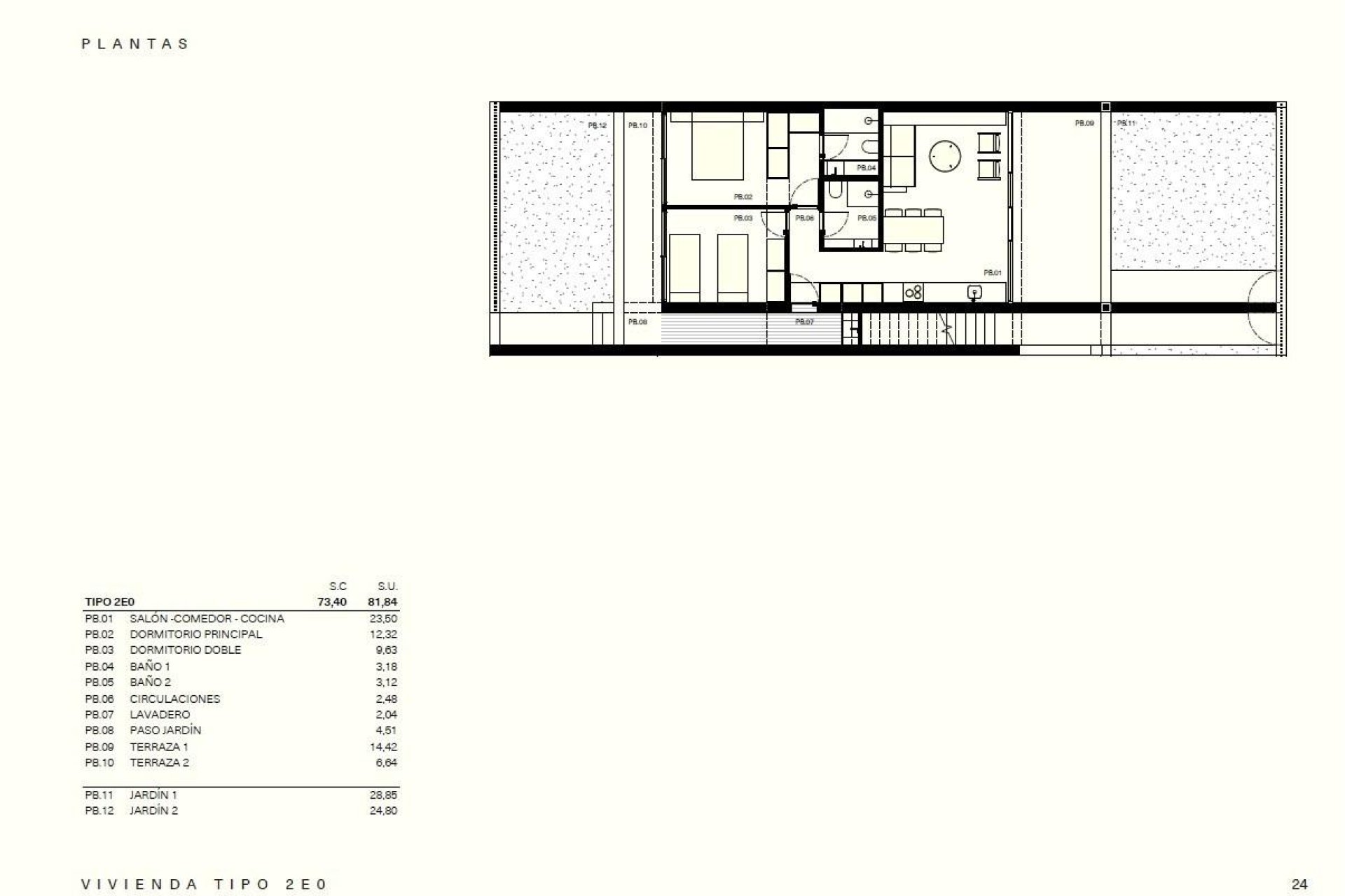
  • Fermetrar 81m2
  • Lóð53m2
  • Svefnherbergi2
  • Baðherbergi2
  • Sundlaug
REF: NB-32859

Eiginleikar

Staðsetning

Perla Invest

Sendu fyrirspurnHafðu samband við okkur

Team
Við hlökkum til að heyra frá þér!

E-mail: info@perlainvest.com

Sími (+34) 96 676 5972

Farsími (+354) 8933911

Stjórnandi gagna: Perla Investments S.L, Tilgangur með vinnslu: Stjórnun og eftirlit með þjónustu sem boðið er upp á í gegnum fasteignaþjónustusíðuna, sending upplýsinga með fréttabréfi og fleira, Lagalegur grundvöllur: Með samþykki, Viðtakendur: Gögn verða ekki deilt nema í bókhaldsskyni, Réttindi viðkomandi: Aðgangur að, leiðrétting á og eyðing gagna, beiðni um flutningshæfni þeirra, andmæli við vinnslu og beiðni um takmörkun, Uppruni gagna: Viðkomandi sjálfur, Viðbótarupplýsingar: Þú getur skoðað viðbótar- og ítarlegar upplýsingar um persónuvernd hér.
Bókaðu einkafund Bókaðu einkafund
WhatsApp Þarftu aðstoð?