VILLAS DE OBRA NUEVA EN ROLDAN
Lujosas villas de obra nueva de 2 plantas en Roldan, Murcia.
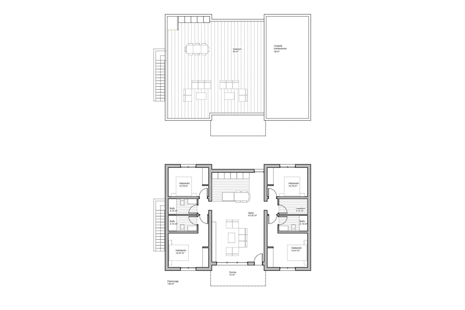
Villas construidas sobre parcelas de casi 600 M2 cada una, con piscina privada de 30 M2, zona ajardinada y amplio solarium en la azotea.
Cada vivienda dispone de 4 dormitorios y 3 baños equipados y han sido diseñadas con un estilo contemporáneo y un concepto diáfano, compuesto por cocina amueblada y salón comedor.
La promoción se encuentra en Roldán (Murcia), en un complejo cerrado y con control de seguridad, incluido en un plan parcial de 300.000 M2, rodeado de todos los servicios, instalaciones deportivas y cerca de varios Campos de Golf.
La propiedad cumplirá con los más altos estándares y estará equipada con:
Piscina privada de 30 M2 con ducha solar.
Preinstalación para bomba climatizada.
Cocina completamente amueblada y equipada con horno elevado, microondas integrado, lavavajillas integrado, frigorífico y campana extractora.
Zona de isla en la cocina.
Iluminación LED: en el interior de la vivienda (comedor, cocina, pasillos y baños), así como en zonas exteriores.
Armarios empotrados forrados con cajoneras.
Cuartos de baño totalmente equipados con lavabo suspendido e inodoro suspendido, espejo con luz, ducha con "efecto lluvia" y mamparas de ducha.
Preinstalación de aire acondicionado por conductos.
Cocina de verano con puertas correderas en solarium. Preinstalación para lavadora y toma de frigorífico.
Placa solar.
Aparcamiento en la parcela.
Roldán en sí es un pueblo tradicional con todos los servicios locales que pueda necesitar, incluyendo supermercados, restaurantes, bares, clínica de salud, farmacia, estación de policía, gasolinera, mecánicos, dentistas, médicos y mucho más.
Los cercanos campos de golf de La Torre y Terrazas son de fácil acceso, el aeropuerto de Corvera está a 15 minutos y las playas del Mar Menor a sólo 20 minutos en coche.
1038