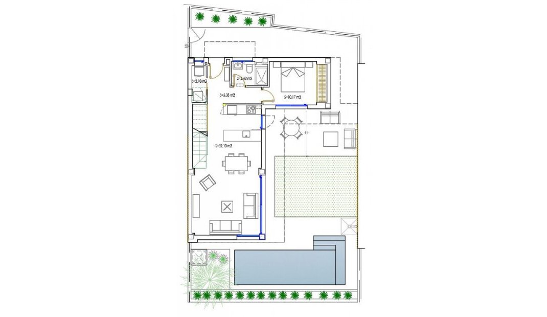
Magnificent villa very close to golfThis magnificent villa is located right next to the Roda golf course in the region of Murcia and is there for perfect for the golf enthusiast. This two-storey villa has 3 bedrooms and 2 bathrooms with underfloor heating. Bright and spacious open plan kitchen and living room, and from there you can access the beautiful garden with a terrace and a private swimming pool, the property also comes with a spacious solarium.
Roda golf is a wonderful 18-hole golf course in a paradisiac spot in where the beautiful nature vibrates harmoniously with the Mediterranean Sea shores, in addition to the golf sport the area has many thigs to offer including golf lessons, pro shop, rentals as well as the clubhouse where you can enjoy good food and drinks in between games. What’s more, the beach is close by which makes this a perfect location for both short term and long-term stays.
The Costa Cálida is the ideal place to enjoy an exclusive paradise with all the cultural and natural wealth the region of Murcia has to offer. It is also a top world-class paradise for sports lovers: Nautical sports or an infinity variety of activities such as swimming, sailing or water ski, as well as other sports options that range from tennis to hiking or golf.
Contact us for more information on this fantastic opportunity!